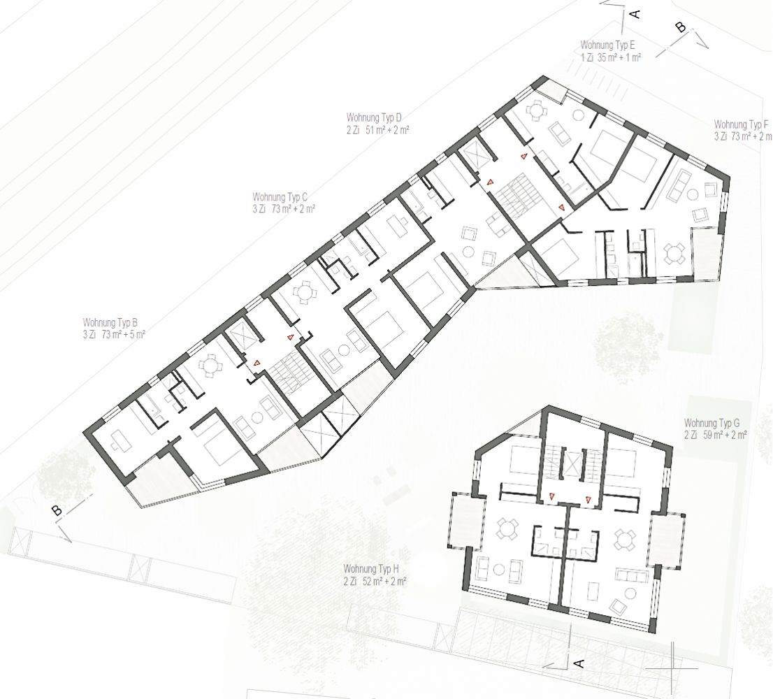
Goethestraße, Freiburg

Entwicklung + Innovation

Service Development

In hervorragender Lage in der Freiburger Innenstadt begleiteten wir das Wohnprojekt "Goethestraße" für die Evangelische Stiftung Pflege Schönau als Service Developer. Ziel des Projekts war die Umsetzung von Objekten mit hoher Wohnqualität zu bezahlbaren Mietpreisen.

Herausforderungen

Für die bauliche Umsetzung musste zunächst das Planungsrecht geschaffen werden, was durch die innerstädtische Lage an zwei Verkehrsachsen und einer komplexen Baulogistik erschwert wurde. Zusätzlich wurde der Managementaufwand durch eine Einzelgewerkvergabe erhöht.

Mehrwerte

Wir konnten sowohl die planungsrechtliche Grundlage sehr zeitnah erreichen als auch die Zielvorgaben des Projekts optimieren.

Projektdaten

  • Leistungsbereich

    Entwicklung + Innovation

  • Leistung

    Service Development

  • Auftraggeber

    Evangelische Stiftung Pflege Schönau

  • Projekt

    Goethestraße

  • Realisierungskonzept

    Wohnen, Büro, Café

  • Grundstücksfläche

    4.500 m²

  • Baujahr

    2022

  • Standort

    Freiburg

  • Leistungszeitraum

    08/2018 bis 06/2022

UnsereProjekte

SDK Hauptverwaltung, Fellbach

Bauherrenvertretung GU-Bauüberwachung Immobilien- und Standortstrategien

Weiterlesen …

Was ist Ihr nächster Schritt?

Wir freuen uns darauf, über Ihre Projekte zu sprechen

Kontakt